ピアース旗の台【賃貸・中古・管理・売却】 | 恵比寿不動産

HOME品川区の賃貸物件旗の台の賃貸物件ピアース旗の台

ピアース旗の台

初期費用カード決済可能カード決済可能

拡大する

外観写真

内観写真

ピアース旗の台の総合評価

4.1
総 合 評 価  
セキュリティ 築 年 建 物 設 備    駅 徒 歩

ピアース旗の台について

ピアース旗の台
品川区旗の台2丁目に建つ、2020年3月竣工の地上10階建分譲賃貸マンションです。

東急大井町線と東急池上線の旗の台駅から徒歩3分に位置しており、通勤や通学・電車でのおでかけに大変便利です。
ホワイトとグレーが爽やかな印象のスタイリッシュな外観となっております。旗の台公園に洗足池公園も近く、自然が感じられる住環境も魅力です。

共有スペースにはエレベーターが設備されており、昇降がスムーズにできます。
総戸数は48戸、1Rから2LDKのルームプランがございます。宅配ボックスもあり、外出の多い方でもスムーズに荷物の受け取りができます。敷地内に24時間ごみを捨てられるごみ置き場がありますので、いつでもごみを捨てられます。

コンビニのセブンイレブン迄徒歩1分、スーパーのまいばすけっと迄徒歩1分と利便性は申し分ありません。また、北馬込1丁目のバス亭まで徒歩10分に位置しており、荏原町や大森などに一本でアクセスすることができます。

物件名
ピアース旗の台
所在地
東京都品川区旗の台2-8-6 MAP
交通
東急大井町線旗の台駅』 徒歩3
東急池上線旗の台駅』 徒歩3
構造
RC
総階数
地上10階 
築年月
2020年03月
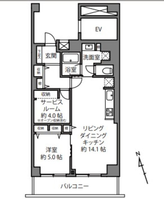
間取り
***
面積
***
駐車場
-
賃料
***
管理費
***
物件特徴
分譲賃貸 , デザイナーズマンション

※ペット飼育・楽器使用・SOHO利用に関しましては、物件特徴に「可・相談」と記載があったとしてもお部屋によって異なる場合がありますので担当者までお問い合わせください

物件設備
オートロック, 宅配ボックス, エレベーター, 駐輪場, バイク置場, 敷地内ゴミ置場, BS, CS, CATV
問合せ番号
e18232
総戸数
48戸
備考
【周辺環境】
■まいばすけっと 旗の台2丁目店(スーパー)まで69m
■セブンイレブン 品川旗の台駅前店(コンビニ)まで75m
■中島薬局(ドラッグストア)まで83m
物件詳細情報

「ピアース旗の台」のお問い合わせは「恵比寿不動産」まで

恵比寿不動産
東京都渋谷区東3-25-11
TOKYU REIT恵比寿ビル4階,7階
恵比寿不動産店舗詳細
  • 店内写真
  • 店内写真

03-6421-0542

受付時間
10:00~19:00

お問い合わせ

ピアース旗の台の売却査定、購入をご検討の方のお問い合わせはこちらから

売却査定、購入をご検討の方は地域密着の当社にお任せください。専任の担当者がご案内いたします。


お問い合わせ
恵比寿不動産だから売却できる7つの自信

ピアース旗の台の賃貸管理をご検討の方のオーナー様へ

恵比寿エリア専門の賃貸情報

掲載情報について

※随時更新を心がけておりますが、掲載している物件が万が一成約している場合もございますので予めご了承下さいませ。
※駐車場・駐輪場・バイク置場の空き状況についてはお問い合わせ下さい。
※ペット飼育やSOHO利用・楽器使用の可否に関しては、建物の管理規約で可能になっていても、お部屋の所有者様によって禁止の場合もございますので御注意下さい。
詳細はメールやお電話にてスタッフまでご相談下さい。

ピアース旗の台周辺の賃貸物件にてご成約頂いたお客様の声

ピアース旗の台の入居者口コミ・評判一覧

ピアース旗の台の周辺地図

ピアース旗の台の家賃と周辺相場の推移

物件の広さ

※物件の広さを変更すると、面積別の相場が確認できます。選択できる面積は、マンションが保有しない面積も表示されますので、ご注意ください。

ピアース旗の台

行政区の相場価格

品川区

対象マンションの賃貸募集事例などをもとに算出した参考相場賃料になり、査定賃料とは異なります。最適な査定賃料を知りたい方はご相談ください。

  • この建物の平均賃料
  • 品川区の建物の平均賃料
  • 旗の台の建物の平均賃料

売買相場の推移

行政区の相場価格

品川区

対象マンションの売却査定、購入事例などをもとに算出した参考相場売買価格になり、査定価格とは異なります。最適な査定価格を知りたい方はご相談ください。

  • 品川区の建物の平均売買価格
  • 旗の台の建物の平均売買価格

ピアース旗の台周辺(旗の台駅)の口コミ・住みやすさ・治安・子育て・環境・評判(16件)

  • Matt 様 /男性 /30代 /会社員 /旗の台駅

    口コミ項目 投稿内容
    アクセス 3.5 メリット

    旗の台駅は、東急大井町線と東急池上線の2路線が乗り入れる便利な駅です。大井町線で二子玉川や自由が丘、大井町方面へ、池上線で五反田へ乗り換えなしで行くことができます。都心へのアクセスも良好で五反田駅でJR山手線に乗り換えれば、東京、品川、渋谷など都心部への移動がスムーズです。

    デメリット
    口コミを投稿して閲覧する

    ああああああああああああああああああああああああああああああああああああああああああああああああ

    飲食店の充実度 4 メリット

    旗の台駅周辺は、多様な飲食店が充実しており、外食を楽しめる環境が整っているとおもいます。特にチェーン店だけでなく、地元に愛される個性的なお店が多いのが特徴です。学生からファミリー層まで、幅広いニーズに対応できる飲食店の多さが、旗の台の魅力ですね。

    デメリット
    口コミを投稿して閲覧する

    ああああああああああああああああああああああああああああああああああああああああああああああああ

    施設の充実度 2 メリット

    駅の両側に広がる「旗の台東口商店街」と「旗の台駅前商店街」には、青果店、精肉店、魚屋などの個人商店が並び、日々の買い物に便利です。また、昭和大学病院をはじめ、駅周辺には複数のクリニックや薬局があり、急な体調不良や定期的な受診にも安心です。

    デメリット
    口コミを投稿して閲覧する

    ああああああああああああああああああああああああああああああああああああああああああああああああ

    治安の良さ 4.5 メリット

    駅周辺には商店街があり、昼夜問わず人通りが多いため、不審者が立ち寄りづらい環境です。また、荏原警察署が近くにあり、パトロールも頻繁に行われているため、地域住民は朝から晩まで安心して生活することができます。

    デメリット
    口コミを投稿して閲覧する

    ああああああああああああああああああああああああああああああああああああああああああああああああ

    暮らし、子育て環境のしやすさ 4.5 メリット

    駅周辺には保育園や幼稚園、小・中学校が点在しており、選択肢が豊富です。特に、有名な昭和大学附属の学校も近くにあります。また、都会でありながら、少し歩けば「清水池公園」や「戸越公園」など、子供がのびのびと遊べる広場や自然豊かな公園が複数あります。

    デメリット
    口コミを投稿して閲覧する

    ああああああああああああああああああああああああああああああああああああああああああああああああ

    コストパフォーマンス 4 メリット

    渋谷や新宿といった都心の主要駅に比べると家賃が手頃でありながら、東急大井町線と池上線を利用して主要な駅へアクセスできる利便性の高さを両立しています。また、スーパーだけでなく、八百屋、肉屋、魚屋などの個人商店も充実しているので食材が安価に手に入ります。

    デメリット
    口コミを投稿して閲覧する

    ああああああああああああああああああああああああああああああああああああああああああああああああ

    総合評価 3.8
    口コミを投稿して閲覧する

    ああああああああああああああああああああああああああああああああああああああああああああああああ

  • リクオ 様 /男性 /60代 /会社員 /旗の台駅

    口コミ項目 投稿内容
    アクセス 4 メリット

    旗の台って、実は思ったよりアクセスが便利なんですよね。東急大井町線と池上線が通ってるから、どっち方面にも行きやすいし、個人的には五反田とか大井町まで10分くらいで着いちゃうのがうれしいポイント。しかも、朝の混雑もそこまでギュウギュウじゃない気がします。駅前にスーパーやカフェがあるのも、帰り道にちょっと寄り道できて、なんだかんだ便利だなって実感しています。都心から少し離れているのに、不便さはほとんど感じません。

    デメリット
    口コミを投稿して閲覧する

    ああああああああああああああああああああああああああああああああああああああああああああああああ

    飲食店の充実度 5 メリット

    旗の台駅周辺は、飲食店が想像以上に多いのがメリットです。昔ながらの定食屋やラーメン店、カフェまでバリエーション豊富なので、外食に困ったことがありません。仕事帰りにふらっと立ち寄れるお店が多いのも嬉しいポイント。個人的には、ちょっと疲れた日でも気軽に美味しいご飯が食べられる場所があると、暮らしの満足度が上がる気がしています。日々の食事の選択肢が多いのは、やっぱり大きな魅力ですね。

    デメリット
    口コミを投稿して閲覧する

    ああああああああああああああああああああああああああああああああああああああああああああああああ

    施設の充実度 3.5 メリット

    旗の台は、生活に必要な施設が駅周辺にギュッと集まっているのが魅力です。スーパーやドラッグストア、銀行、病院など、日常生活に欠かせない施設が徒歩圏内にそろっていて、本当に便利だと感じます。大きな公園や図書館もあり、子育て世代やシニアの方にも安心な環境です。何か困ったことがあっても、近くでサッと用事を済ませられるので、住んでいて不便さを感じることはほとんどありません。

    デメリット
    口コミを投稿して閲覧する

    ああああああああああああああああああああああああああああああああああああああああああああああああ

    治安の良さ 4 メリット

    旗の台の大きなメリットは、やはり治安の良さです。住宅街が広がっていて、駅周辺も落ち着いた雰囲気があるので、夜遅く帰宅しても怖い思いをしたことはありません。地域の見回りや交番もあり、子どもや女性の一人歩きでも安心感があります。商店街も活気がありつつ、トラブルや騒音が少ないので、静かで落ち着いた暮らしを求める方にはぴったり。家族で暮らすにも、一人暮らしにも、安心して過ごせる町だと感じています。

    デメリット
    口コミを投稿して閲覧する

    ああああああああああああああああああああああああああああああああああああああああああああああああ

    暮らし、子育て環境のしやすさ 4 メリット

    旗の台は子育て世帯にも住みやすい町だと感じます。駅周辺に保育園や小学校、公園が点在し、スーパーやドラッグストアも多いので、毎日の買い物や送り迎えもラク。地域の目が行き届いている雰囲気があり、安心して子どもを育てられるのが大きなメリットです。また、静かな住宅街が広がっているため、夜も騒がしさが少なく、落ち着いた環境で家族みんながゆったり暮らせます。育児中の友人も「住み心地がいい」と話していました。

    デメリット
    口コミを投稿して閲覧する

    ああああああああああああああああああああああああああああああああああああああああああああああああ

    コストパフォーマンス 4.5 メリット

    旗の台は、コストパフォーマンスを重視したい方にとって意外と穴場だと感じます。家賃相場は都心の人気エリアに比べるとやや抑えめなのに、アクセスの良さや生活施設の充実度を考えると、十分に価値があると実感できます。スーパーや飲食店も多いので、毎月の生活費をコントロールしやすいのもポイント。都心までの移動がラクなのに、普段の生活に困らない環境は、費用対効果が高いと感じる理由です。

    デメリット
    口コミを投稿して閲覧する

    ああああああああああああああああああああああああああああああああああああああああああああああああ

    総合評価 4.2
    口コミを投稿して閲覧する

    ああああああああああああああああああああああああああああああああああああああああああああああああ

  • E.T 様 /男性 /60代 /会社員 /旗の台駅

    口コミ項目 投稿内容
    アクセス 3.5 メリット

    東急大井町線と池上線の2路線が使えるから、渋谷方面にも蒲田方面にもサクッと出られるし、大井町や五反田にもすぐ行ける。派手さはないけど、「あ、どこに行くにも案外便利だな」って日々感じるタイプの立地です。 乗り換えもスムーズだし、駅もこぢんまりしてて移動がラク。人混みに疲れないのも、ちょっとしたメリットかも。都心と程よい距離感があって、暮らすにはちょうどいいアクセス感なんですよ。

    デメリット
    口コミを投稿して閲覧する

    ああああああああああああああああああああああああああああああああああああああああああああああああ

    飲食店の充実度 4 メリット

    駅前を中心に、個人経営の小さなお店が多くて、チェーンに頼らなくても美味しいごはんに出会えるのがうれしいところ。定食屋さん、中華、ラーメン、昔ながらの喫茶店なんかが点在してて、「今日はどこにしようかな」って迷うくらい。 派手じゃないけど、気取らず入れて、しっかりおいしい。そんな“地元に愛されてる感”のあるお店が多い印象です。あと、学生やファミリー層も多いエリアなので、価格帯もわりと良心的。外食してもあんまりお財布が痛まないって、地味にありがたいんですよね。

    デメリット
    口コミを投稿して閲覧する

    ああああああああああああああああああああああああああああああああああああああああああああああああ

    施設の充実度 3 メリット

    旗の台の施設の充実度、実は“暮らし目線”で見るとかなりバランスがいいんです。駅の周りにはスーパーやドラッグストア、100円ショップなんかがコンパクトにまとまっていて、日常の買い物には本当に困らない感じ。大きすぎず、小さすぎず、ちょうどいい規模感が落ち着くんですよね。 また、病院が多いエリアとしても知られていて、昭和大学病院をはじめとした医療施設がすぐ近くにあるのも大きな安心材料。急なケガや体調不良のときも、すぐ対応できる環境があるのはありがたいです。

    デメリット
    口コミを投稿して閲覧する

    ああああああああああああああああああああああああああああああああああああああああああああああああ

    治安の良さ 3 メリット

    旗の台の治安の良さは、安心して暮らせる街という点で大きなメリットです。住宅街がメインのエリアなので、全体的に静かで落ち着いた雰囲気があり、夜遅くに歩いていても怖さを感じにくいんですよね。それに、学生やファミリー層、高齢者まで幅広い世代が暮らしている街なので、自然と人の目が行き届いている感じがあって、防犯面でも安心感があります。繁華街のような酔っぱらいトラブルや騒音も少なくて、落ち着いた生活を送りたい人にはとても向いているエリアです。

    デメリット
    口コミを投稿して閲覧する

    ああああああああああああああああああああああああああああああああああああああああああああああああ

    暮らし、子育て環境のしやすさ 4 メリット

    旗の台は、派手さはないけれど“暮らしやすさ”がじわっと効いてくる街です。まず、住宅街が中心なので静かで落ち着いていて、子育てするにはちょうどいい環境。交通量が多すぎず、小学校や保育園も点在していて、子どもを育てるうえでの“生活の安心感”があるんですよね。 駅周辺にはスーパーやドラッグストア、医療機関もそろっていて、必要なものが徒歩圏でだいたい完結するのも嬉しいポイント。大きな病院(昭和大学病院)が近いというのも、子育て中の家庭には心強いです。

    デメリット
    口コミを投稿して閲覧する

    ああああああああああああああああああああああああああああああああああああああああああああああああ

    コストパフォーマンス 4 メリット

    都心からのアクセスが良好でありながら、家賃や物価が周辺エリア(たとえば自由が丘や中目黒)と比べて控えめ。似たような条件の物件でも、旗の台ならちょっと広めだったり、静かな住宅街に住めたりするんです。 それに、駅近くにはスーパー、ドラッグストア、飲食店などがバランスよく揃っていて、生活コストも無理なく抑えられる印象。外食もリーズナブルなお店が多く、日々の出費が大きくなりにくいのもポイントです。

    デメリット
    口コミを投稿して閲覧する

    ああああああああああああああああああああああああああああああああああああああああああああああああ

    総合評価 3.6
    口コミを投稿して閲覧する

    ああああああああああああああああああああああああああああああああああああああああああああああああ

  • Y.H 様 /女性 /20代 /専業主婦(主夫) /旗の台駅

    口コミ項目 投稿内容
    アクセス 4.5 メリット

    池上線と大井町線の2路線があり、池上線では蒲田や五反田、大井町線では大井町や溝の口まで出られ、蒲田、大井町は京浜東北線、五反田は山手線、大井町線中延駅は都営浅草線もあり、乗り換え等はとても便利だと感じます。

    デメリット
    口コミを投稿して閲覧する

    ああああああああああああああああああああああああああああああああああああああああああああああああ

    飲食店の充実度 2.5 メリット

    飲食店はあまり充実している印象はなく、チェーン店も少ないイメージです。

    デメリット
    口コミを投稿して閲覧する

    ああああああああああああああああああああああああああああああああああああああああああああああああ

    施設の充実度 4 メリット

    イオンタウンができた事で以前より充実度は増したと感じます。

    デメリット
    口コミを投稿して閲覧する

    ああああああああああああああああああああああああああああああああああああああああああああああああ

    治安の良さ 3.5 メリット

    変に酔っ払った人は少ない印象で、治安は良い方だと思います。

    デメリット
    口コミを投稿して閲覧する

    ああああああああああああああああああああああああああああああああああああああああああああああああ

    暮らし、子育て環境のしやすさ 3.5 メリット

    コンビニやスーパー、ドラッグストア、大学病院等があるので暮らしやすいとは思います。

    デメリット
    口コミを投稿して閲覧する

    ああああああああああああああああああああああああああああああああああああああああああああああああ

    コストパフォーマンス 4 メリット

    総合的なコスパは良い方なのかな、と感じます。

    デメリット
    口コミを投稿して閲覧する

    ああああああああああああああああああああああああああああああああああああああああああああああああ

    総合評価 3.7
    口コミを投稿して閲覧する

    ああああああああああああああああああああああああああああああああああああああああああああああああ

  • カステラ 様 /女性 /20代 /無職 /旗の台駅

    口コミ項目 投稿内容
    アクセス 3 メリット

    自分は、もっぱら池上線への乗り換え窓口として利用している。

    デメリット
    口コミを投稿して閲覧する

    ああああああああああああああああああああああああああああああああああああああああああああああああ

    飲食店の充実度 2.5 メリット

    個人商店も多いので、チェーン店に飽きた人は楽しめるかもしれない。

    デメリット
    口コミを投稿して閲覧する

    ああああああああああああああああああああああああああああああああああああああああああああああああ

    施設の充実度 2.5 メリット

    不便と言い切れるほどではない。駅前には少ないが、少し足を延ばせば色々とある

    デメリット
    口コミを投稿して閲覧する

    ああああああああああああああああああああああああああああああああああああああああああああああああ

    治安の良さ 4 メリット

    よほどの場所に行かないなら、町もきれいで治安もいい。

    デメリット
    口コミを投稿して閲覧する

    ああああああああああああああああああああああああああああああああああああああああああああああああ

    暮らし、子育て環境のしやすさ 3 メリット

    過干渉なコミュニティに接さずに生きていくことは十分に可能。

    デメリット
    口コミを投稿して閲覧する

    ああああああああああああああああああああああああああああああああああああああああああああああああ

    コストパフォーマンス 2.5 メリット

    東急の街なので、東急カードやサービスが使いやすい

    デメリット
    口コミを投稿して閲覧する

    ああああああああああああああああああああああああああああああああああああああああああああああああ

    総合評価 2.9
    口コミを投稿して閲覧する

    ああああああああああああああああああああああああああああああああああああああああああああああああ

  • toida.c 様 /女性 /30代 /会社員 /旗の台駅

    口コミ項目 投稿内容
    アクセス 4 メリット

    2路線が通っていて都心に行くにも横浜方面に行くにも便利

    デメリット
    口コミを投稿して閲覧する

    ああああああああああああああああああああああああああああああああああああああああああああああああ

    飲食店の充実度 3.5 メリット

    駅前に小さな商店街があり、カフェ、居酒屋、ラーメン屋などがある。

    デメリット
    口コミを投稿して閲覧する

    ああああああああああああああああああああああああああああああああああああああああああああああああ

    施設の充実度 2 メリット

    駅近くにビジネスホテルや大学病院などがある。

    デメリット
    口コミを投稿して閲覧する

    ああああああああああああああああああああああああああああああああああああああああああああああああ

    治安の良さ 3.5 メリット

    昔ながらの商店街のある小さな街でほのぼのとしている。

    デメリット
    口コミを投稿して閲覧する

    ああああああああああああああああああああああああああああああああああああああああああああああああ

    暮らし、子育て環境のしやすさ 4 メリット

    駅付近の住所は子育て世帯も多く、子連れにも優しい雰囲気がある。

    デメリット
    口コミを投稿して閲覧する

    ああああああああああああああああああああああああああああああああああああああああああああああああ

    コストパフォーマンス 3.5 メリット

    品川区内では比較的地価も安いが、生活するには不便があまりない。

    デメリット
    口コミを投稿して閲覧する

    ああああああああああああああああああああああああああああああああああああああああああああああああ

    総合評価 3.4
    口コミを投稿して閲覧する

    ああああああああああああああああああああああああああああああああああああああああああああああああ

  • Y.W 様 /女性 /20代 /アルバイト・パート /旗の台駅

    口コミ項目 投稿内容
    アクセス 4.5 メリット

    付近の店や施設が多い 歩くて10分は他の駅があります

    デメリット
    口コミを投稿して閲覧する

    ああああああああああああああああああああああああああああああああああああああああああああああああ

    飲食店の充実度 5 メリット

    いろんな店はあります ファストフードやラーメンがある

    デメリット
    口コミを投稿して閲覧する

    ああああああああああああああああああああああああああああああああああああああああああああああああ

    施設の充実度 5 メリット

    エレベーターやエスカレーターはいます あまり歩く必要ない

    デメリット
    口コミを投稿して閲覧する

    ああああああああああああああああああああああああああああああああああああああああああああああああ

    治安の良さ 5 メリット

    警察署が近くにいます 変な人はない 安心できます

    デメリット
    口コミを投稿して閲覧する

    ああああああああああああああああああああああああああああああああああああああああああああああああ

    暮らし、子育て環境のしやすさ 5 メリット

    図書館や学校は近い 公園もある 子育てしやすい

    デメリット
    口コミを投稿して閲覧する

    ああああああああああああああああああああああああああああああああああああああああああああああああ

    コストパフォーマンス 5 メリット

    郵便局やドラッグストアとスーパーがあります

    デメリット
    口コミを投稿して閲覧する

    ああああああああああああああああああああああああああああああああああああああああああああああああ

    総合評価 4.9
    口コミを投稿して閲覧する

    ああああああああああああああああああああああああああああああああああああああああああああああああ

  • M.N 様 /女性 /40代 /アルバイト・パート /旗の台駅

    口コミ項目 投稿内容
    アクセス 4 メリット

    東急池上線まで一駅であり、大井町線にも接続している。

    デメリット
    口コミを投稿して閲覧する

    ああああああああああああああああああああああああああああああああああああああああああああああああ

    飲食店の充実度 4 メリット

    ファーストフードやコンビニ、焼き肉屋、ラーメン、パスタなど飲食店のバリエーションが豊かである。

    デメリット
    口コミを投稿して閲覧する

    ああああああああああああああああああああああああああああああああああああああああああああああああ

    施設の充実度 3 メリット

    イオンスタイルや商店街があり、食料品や整体、クリニックなど日常生活を送る上で便利な施設が多数ある。

    デメリット
    口コミを投稿して閲覧する

    ああああああああああああああああああああああああああああああああああああああああああああああああ

    治安の良さ 4 メリット

    商店街に活気があるので、人通りも多くにぎやかである。

    デメリット
    口コミを投稿して閲覧する

    ああああああああああああああああああああああああああああああああああああああああああああああああ

    暮らし、子育て環境のしやすさ 4 メリット

    小さな公園やクリニックも多いので、こどもを育て安い環境がある。

    デメリット
    口コミを投稿して閲覧する

    ああああああああああああああああああああああああああああああああああああああああああああああああ

    コストパフォーマンス 3.5 メリット

    駅へのアクセスがよいので、通勤や通学にも便利である。また、駅周辺もにぎわっているので暮らしやすい。

    デメリット
    口コミを投稿して閲覧する

    ああああああああああああああああああああああああああああああああああああああああああああああああ

    総合評価 3.8
    口コミを投稿して閲覧する

    ああああああああああああああああああああああああああああああああああああああああああああああああ

  • N.N 様 /女性 /30代 /専業主婦(主夫) /旗の台駅

    口コミ項目 投稿内容
    アクセス 3 メリット

    東急大井町線と池上線が通っており、本数も多く充実している。

    デメリット
    口コミを投稿して閲覧する

    ああああああああああああああああああああああああああああああああああああああああああああああああ

    飲食店の充実度 3 メリット

    個人経営のカフェやレストランは穴場のお店が多い。

    デメリット
    口コミを投稿して閲覧する

    ああああああああああああああああああああああああああああああああああああああああああああああああ

    施設の充実度 3 メリット

    大きい病院(昭和大学病院)があるので、通院などのある方には便利。

    デメリット
    口コミを投稿して閲覧する

    ああああああああああああああああああああああああああああああああああああああああああああああああ

    治安の良さ 3 メリット

    静かな住宅街で、物騒な事件はほとんど聞かない。

    デメリット
    口コミを投稿して閲覧する

    ああああああああああああああああああああああああああああああああああああああああああああああああ

    暮らし、子育て環境のしやすさ 3.5 メリット

    公園や学校が多いのでファミリー層には住みやすい。

    デメリット
    口コミを投稿して閲覧する

    ああああああああああああああああああああああああああああああああああああああああああああああああ

    コストパフォーマンス 3 メリット

    駅周辺に商店街があり、ちょっとした買い物には困らない。

    デメリット
    口コミを投稿して閲覧する

    ああああああああああああああああああああああああああああああああああああああああああああああああ

    総合評価 3.1
    口コミを投稿して閲覧する

    ああああああああああああああああああああああああああああああああああああああああああああああああ

  • リクT.T 様 /男性 /50代 /会社員 /旗の台駅

    口コミ項目 投稿内容
    アクセス 4 メリット

    東急大井町線と池上線からアクセス可能な駅です。

    デメリット
    口コミを投稿して閲覧する

    ああああああああああああああああああああああああああああああああああああああああああああああああ

    飲食店の充実度 3 メリット

    古くからある飲食店も多く、特に夜は繁華街で賑わいがある。ディープな店も多いです。

    デメリット
    口コミを投稿して閲覧する

    ああああああああああああああああああああああああああああああああああああああああああああああああ

    施設の充実度 4 メリット

    学校も駅から歩いて直ぐあります。また大きな大学病院もあるので安心感がある。

    デメリット
    口コミを投稿して閲覧する

    ああああああああああああああああああああああああああああああああああああああああああああああああ

    治安の良さ 3 メリット

    日中は商店街も賑わいがあり、周りの目もあるのでとても安心して歩けると思います。

    デメリット
    口コミを投稿して閲覧する

    ああああああああああああああああああああああああああああああああああああああああああああああああ

    暮らし、子育て環境のしやすさ 4 メリット

    商店街で殆ど日用品も手に入ります。子育て世帯も多く賑わいもあります。塾や学校も多いです。区内の学校に通うにも、旗の台は便利だと思います。

    デメリット
    口コミを投稿して閲覧する

    ああああああああああああああああああああああああああああああああああああああああああああああああ

    コストパフォーマンス 3 メリット

    東急の駅でも、少し高い方なのではないかと思います。施設が充実している事から、この金額は妥当だと思います。

    デメリット
    口コミを投稿して閲覧する

    ああああああああああああああああああああああああああああああああああああああああああああああああ

    総合評価 3.5
    口コミを投稿して閲覧する

    ああああああああああああああああああああああああああああああああああああああああああああああああ

ピアース旗の台周辺(旗の台駅)の家賃相場

ピアース旗の台周辺(旗の台駅)の売買相場

間取り 売買相場 該当物件
1R
6,580万円
旗の台駅、1Rの物件一覧
1K
3,919万円
旗の台駅、1Kの物件一覧
1DK
2,980万円
旗の台駅、1DKの物件一覧
1LDK(+S)
6,025万円
旗の台駅、1LDK(+S)の物件一覧
2K/2DK
4,288万円
旗の台駅、2K/2DKの物件一覧
2LDK(+S)
6,619万円
旗の台駅、2LDK(+S)の物件一覧
3K/3DK
6,642万円
旗の台駅、3K/3DKの物件一覧
3LDK(+S)
旗の台駅、3LDK(+S)の物件一覧
4K/4DK/4LDK
旗の台駅、4K/4DK/4LDKの物件一覧
5LDK(+S)以上
旗の台駅、5LDK(+S)以上の物件一覧

「ピアース旗の台」のお問い合わせは「恵比寿不動産」まで

恵比寿不動産
東京都渋谷区東3-25-11
TOKYU REIT恵比寿ビル4階,7階
恵比寿不動産店舗詳細
  • 店内写真
  • 店内写真

03-6421-0542

受付時間
10:00~19:00

お問い合わせ

ピアース旗の台の売却査定、購入をご検討の方のお問い合わせはこちらから

売却査定、購入をご検討の方は地域密着の当社にお任せください。専任の担当者がご案内いたします。


お問い合わせ
恵比寿不動産だから売却できる7つの自信

ピアース旗の台の賃貸管理をご検討の方のオーナー様へ

恵比寿エリア専門の賃貸情報

ピアース旗の台に最寄り駅の近い物件

新着・更新物件

品川区の販売中物件

ピアース旗の台の周辺の物件

ピアース旗の台の周辺の注目スポット

  • 所在地:東京都品川区旗の台2-1地先

    ピアース旗の台から徒歩 約3

    旗の台駅から徒歩約2分、中原街道から東急池上線までの間の暗渠した立会川の上部を利用して造られた細長い公園です。令和5年度に改修工事を行っており、幼児用滑り台とラダー遊具が設置されました。園内は日当たりの良い広々としたタイル張りの敷地で、適所に草花や植物、樹木が植えられた花壇が置かれています。東急池上線方面、南側にはトイレと有料の駐輪場があります。ベンチや時計も置かれており、日頃から多くの方が活用している公園です。

  • 所在地:東京都品川区小山6-3-10

    ピアース旗の台から徒歩 約21

    営業時間:24時間

    定休日:無

    5件の口コミ

    西小山駅ビルは西小山駅より徒歩1分のところにある複合施設です。スーパーマーケットを中心に、レストラン、美容室、フィットネス、リラクゼーション、コンビニなどが集結し地域住民だけでなく、通勤通学の人々を支えています。スーパーマーケットでは、単身世帯の多い地域特性に合わせてすぐ食べられる惣菜、生鮮素材を使用した手作り商品を提供し「安全、安心、健康」はもちろん、利便性にこだわっているのが魅力です。終電まで営業しているため、遅いご飯に対応してくれるのも安心できます。

ピアース旗の台の周辺の教育機関

  • 所在地:東京都品川区旗の台1-11-17

    ピアース旗の台から徒歩 約1

    旗の台駅から徒歩5分、男女共学の公立小学校です。小規模校でありながら、品川区立荏原第五中学校・香蘭女学校と連携・交流ある教育活動を推進しています。昭和大学病院院内に、さいかち学級を開級。入院している子供たちの体調に合わせながら、国語、算数、図工や音楽等を教えています。防犯教育の徹底・交通安全指導・毎月の避難訓練・犯罪に巻き込まれないための講話等、子供たちの防災・防犯意識の向上にも力をいれる学校です。

  • 所在地:東京都品川区旗の台6-22-21

    ピアース旗の台から徒歩 約3

    旗の台駅から徒歩5分、私立の女子中学校です。中高一貫校であり、中等科生はレンガ造りの本館で学んでいます。キリスト教の信仰にもとづいた人間教育を行うミッションスクールであり、週1時間の聖書の授業毎朝の15分の礼拝が行われます。英語教育にも力をいれており、外国人教師を含めたチームティーチングを基本として、基礎力を高める問題演習等はクラス全体で、スピーキング・プレゼンテーション、ライティング等は少人数での授業で理解を深めています。

  • 所在地:東京都品川区旗の台6-22-21

    ピアース旗の台から徒歩 約3

    旗の台駅から徒歩5分、私立の女子高校です。レンガ造りの印象的な校舎。キリスト教の信仰に基づく女子の教育を行うミッションスクールで、完全中高一貫教育を展開する学校です。紺のブレザー・グレーのスカートの英国式の制服が受け継がれ、毎朝の15分、中等科高等科の全校生徒が一堂に会し、礼拝が捧げられています。立教大学と聖路加国際大学との高大連携プログラムによる指定校推薦によって、卒業生の半数以上が立教大学へ進学しています。

ピアース旗の台の周辺のスーパー

  • 所在地:東京都品川区旗の台2-7-12 アベイト 103号室

    ピアース旗の台から徒歩 約2

    営業時間:8:00-0:00

    定休日:無

    旗の台駅から徒歩2分に位置する小型スーパーです。近所にコンビニが数軒ありますが、手軽に寄れるスーパーとしてこちらを利用する人が大勢います。コンビニ風ですが、生鮮食品が豊富で他の商品も満遍なく揃っているので困りません。ミネラルウォーターが安いので箱買いをする方も多く、手数料はかかりますが自宅まで配達可能なので利用すると便利です。セルフレジが導入されているので会計に時間がかかることはほとんどありません。

  • 所在地:東京都品川区旗の台5-5-6

    ピアース旗の台から徒歩 約5

    営業時間:9:00-23:00

    定休日:無

    旗の台駅から1分の場所にあり、健康を意識した商品を展開しているスーパーです。鮮度の良い生鮮食品だけでなく、簡単に調理ができるミールキットや手間を省けるレンジ調理品が多く用意されており、夕方以降も出来立てのお惣菜を販売しています。近隣に大学があり単身者が多い一方で、ファミリー層も増加傾向にあるため、需要に合わせた商品の製造販売に力を入れています。コード決済や電子マネーが使用できるのでお支払いが便利です。

  • 所在地:東京都品川区旗の台4-4-1 カーサ旗の台 1階

    ピアース旗の台から徒歩 約8

    営業時間:8:00-23:00

    定休日:無

    荏原町駅から徒歩3分のマンション一階にあるスーパーです。小さい店舗ですが品揃えは良く空調もしっかり効かせているので、真夏でも快適にお買い物ができます。周囲にはコンビニや青果店、スーパーが立ち並んでいますが、コンビニのように入りやすくスーパー同様の品数と安さで気軽に買い物ができることから、その存在価値はとても高いです。自社ブランド製品はコスパが良いと評判で、特にプロテインバーや冷凍カット野菜などが人気です。

ピアース旗の台の周辺施設一覧

ピアース旗の台と同じピアース(株式会社モリモト)シリーズの物件

ピアースの物件一覧を見る

旗の台駅の周辺の駅から賃貸物件を探す

品川区にある駅から賃貸物件を探す

品川区以外の区から賃貸物件を探す

旗の台駅のこだわり物件を探す

旗の台駅の種別から探す

不動産オーナー様向けの賃貸管理コラム

トップ

不動産オーナー様へ
賃貸管理 売却 AI査定